Naar de startpagina
Te vergelijken producten
0 artikelen
gallery image gallery image gallery image gallery image gallery image gallery image gallery image gallery image

Bestekservice en downloads

Meccado scootmobielstallingen en overkappingen.

De Meccado omvat wat een goede scootmobiel overkapping en stalling nodig heeft. Deze scootmobiel berging bestaat uit diverse standaardelementen die verschillende opstellingen en combinaties mogelijk maken. U kunt dus uw eigen scootmobielstalling samenstellen. Dankzij het montagesysteem is de Meccado scootmobielberigng eenvoudig te plaatsen, naderhand aan te passen of eventueel naar uw toekomstige wensen uit te breiden.

 

Meer weten?

Productdetails.

KENMERKEN
- stalling naar eigen wens samen te stellen
- eindeloos doorkoppelbaar en eenvoudig uitbreidbaar
- optie om elk compartiment te voorzien van een deur met slot
- zowel enkele als dubbele deuren mogelijk
- geïntegreerde hemelwaterafvoer
- gemonteerd geleverd of zelf te monteren en aan te passen
- goede prijs/kwaliteitverhouding

MODULAIR
Door de diversiteit aan standaardelementen en afmetingen is de Meccado scootmobielstalling naar eigen wens samen te stellen. Door het unieke haak- en bouwsysteem zijn alle onderdelen met elkaar te combineren. De robuuste constructie maakt een vrije overspanning tot maar liefst 5 meter mogelijk en is onbeperkt in alle richtingen uit te breiden. Alle componenten, inclusief de deuren, zijn overal te plaatsen. Alle onderdelen kunnen los worden nageleverd om uitbreiding van een bestaande Meccado mogelijk te maken.

ACCESSOIRES
- verlichting
- stopcontacten
- oplegplanken voor accu's
- toegangscontrolesysteem
- stelvoeten voor verlengde fundering op maaiveld
- fundatiebuis voor verlengde fundering onder maaiveld

DEUREN
Enkele deur: links- of rechtsdraaiend, voorzien van een cilinderslot
Dubbele deur: voorzien van een cilinderslot, gelijksluitende sloten beschikbaar

VERLICHTING
Deze wordt geïnstalleerd in het midden van een door de klant aangewezen afwatergoot. De bekabeling van de verlichting loopt beschermd door de goot. Vraag naar de mogelijkheden voor het aanbrengen van verlichting.

TOEGANGSCONTROLESYSTEMEN
Vraag naar de mogelijkheden voor het aanbrengen van een toegangscontrolesysteem.

HEMELWATERAFVOER
Hemelwater wordt net boven het maaiveld afgevoerd via de goot en de door u gekozen holle staander.

MATERIALEN EN BEHANDELING
Frame en constructie: staal, verzinkt en eventueel gecoat
Dak panelen: hoogwaardig polyester
Wanden en deuren: FSC® gecertificeerd hardhout, onbehandeld of in kleur gespoten, verticaal latwerk

KLEUREN
Frame en constructie: in vrijwel alle RAL kleuren leverbaar
Dakplaten: opaal en transparant
Wanden en deuren: in diverse RAL kleuren leverbaar

SERVICECONTRACT
Het is mogelijk een servicecontract af te sluiten. VelopA verzorgt dan twee maal per jaar (of indien gewenst vaker) de reiniging van de Meccado.

ALTIJD EEN ADVIES OP MAAT
VelopA biedt uitgebreide ondersteuning bij het kiezen van de juiste scootmobiel overkapping of stalling. Om u de ideale oplossing te kunnen aanbieden doorlopen we met u een aantal vragen. Op basis van uw antwoorden maakt ons verkoopteam een advies op maat. Vaak kan dat telefonisch. Soms zal één van onze verkoopadviseurs bij u langskomen om de situatie te bekijken, uw specifieke wensen te bespreken en de overkapping in te meten. Vervolgens krijgt u een vrijblijvend voorstel met een technische tekening in verschillende perspectieven. U bent verzekerd van een pasklare oplossing waarbij de uitstraling en functionaliteit hand in hand gaan.

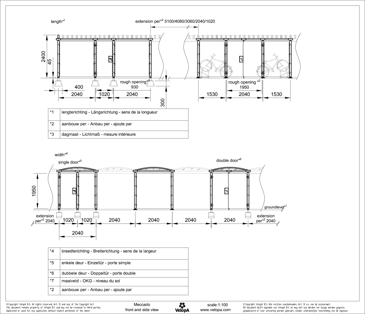
Maten.

drawing image drawing image drawing image

- het model voor fundatie onder het maaiveld heeft betonvoeten die worden ingegraven
- het model voor plaatsing op beton/asfalt heeft voetplaten, die worden vastgezet met ankers
De Meccado scootmobielstalling wordt standaard geleverd inclusief montage, uitgevoerd door onze eigen montagemedewerkers.

Meccado scootmobielstallingen en overkappingen.

Als u interesse heeft in dit product, kunt u hier een offerte aanvragen.

Vraag informatie aan