Naar de startpagina
Te vergelijken producten
0 artikelen
Panna Field sportkooi Panna Field sportkooi Panna Field sportkooi Panna Field sportkooi Panna Field sportkooi Panna Field sportkooi Panna Field sportkooi Panna Field sportkooi Panna Field sportkooi

Bestekservice en downloads

Panna Field sportkooi.

Jongeren willen actie en beweging. Het stevige, compacte Panna Field is hét antwoord op deze straatvoetbalrage. Bij deze dynamische sport is het de uitdaging door de benen van de tegenstander te spelen en een Panna te scoren. Het stoere en eigentijdse ontwerp spreekt jongeren direct aan. Met het Panna Field kunnen ze op sportieve wijze hun energie kwijt!

 

Productdetails.

KENMERKEN
- eigentijds spelelement
- duurzaam en robuust
- vandalismebestendig
- klein benodigd speeloppervlak
- stoer ontwerp

 

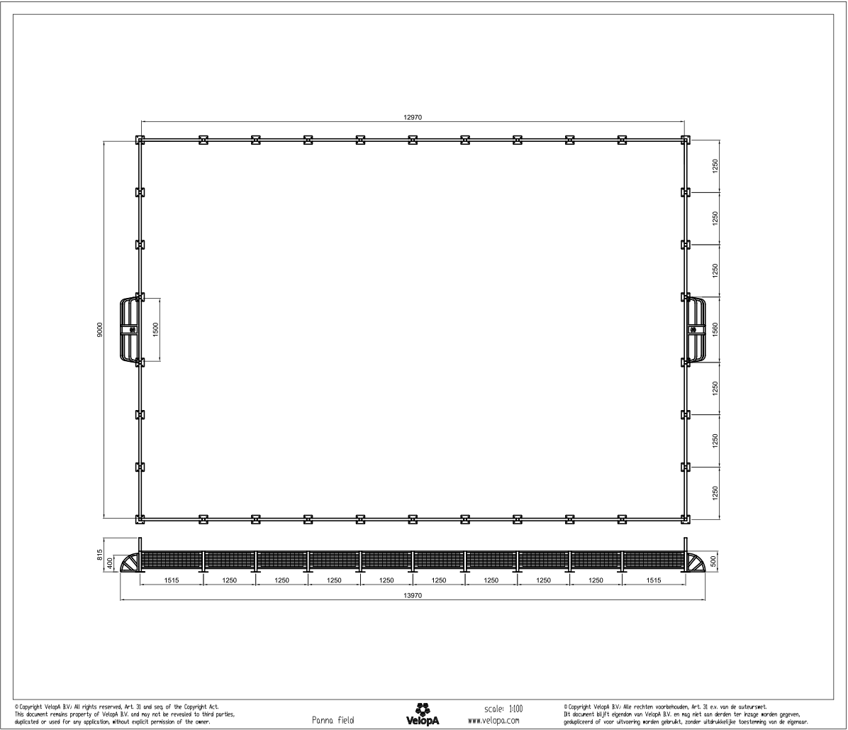
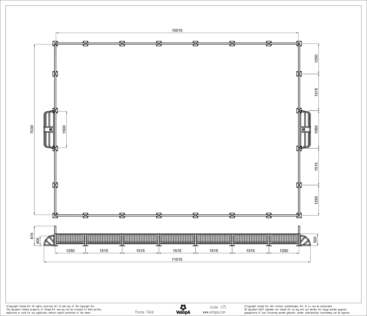
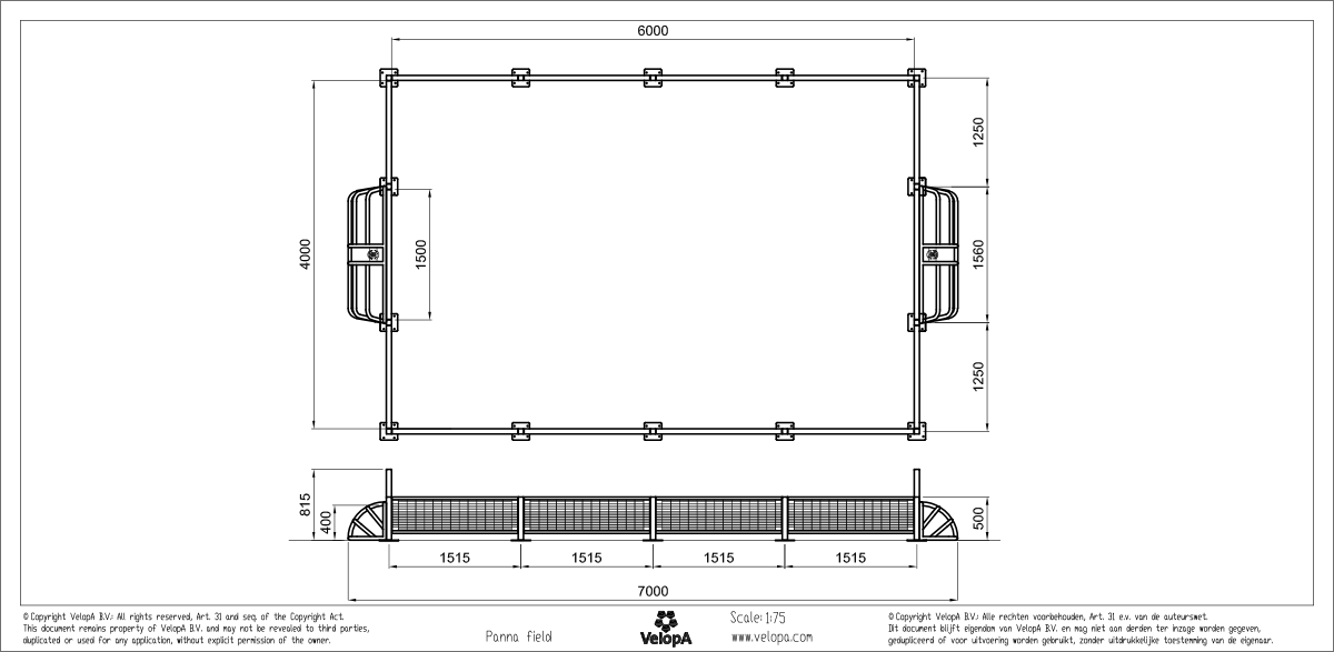
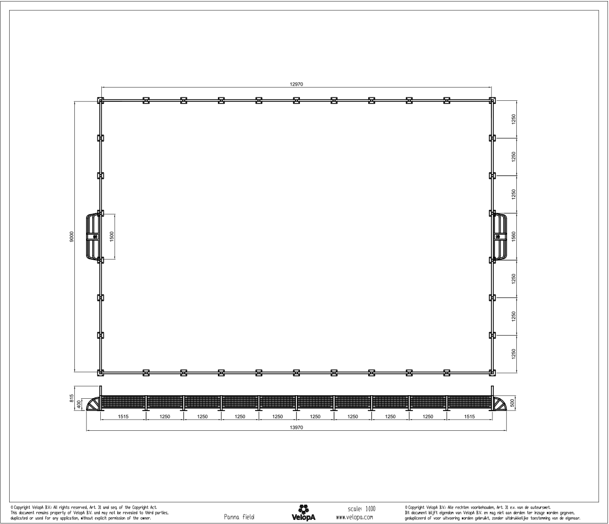
Maten.

Panna Field sportkooi Panna Field sportkooi Panna Field sportkooi
MONTAGE

- bevestiging gelijk aan maaiveld door middel van betonvoeten
- bevestiging gelijk aan maaiveld met behulp van chemische ankers

De rekken zijn koppelbaar m.b.v. een montageset.
Het fietsenrek kan ook los op het maaiveld worden geplaatst of verankerd.

Projecten met dit product.